СМОТРЕТЬ ВСЕ
Офис
Московская область,
Одинцовский район,
поселок Горки-2,
Садовый центр “Горки-Парк”

Ежедневно с 10:00 до 21:00
+7 499 938 93 08
info@artkelo.ru

Стремиловское

Стоимость стенового комплекта

от 8 533 000 ₽

Общая площадь

441 м²

Площадь помещений

279 м²

Фото дома-бани Стремиловское
Стоимость стенового комплекта

от 8 533 000 ₽

Общая площадь

441 м²

Площадь помещений

279 м²

Проект двухэтажного загородного дома.

Дерево, стекло и камень – три основные составляющие этого проекта. Именно эти природные материалы формируют особое пространство, где сливаются интерьер и окружающая среда. Открытое пространство леса отделяет от интерьера только тонкое стекло от пола до потолка.

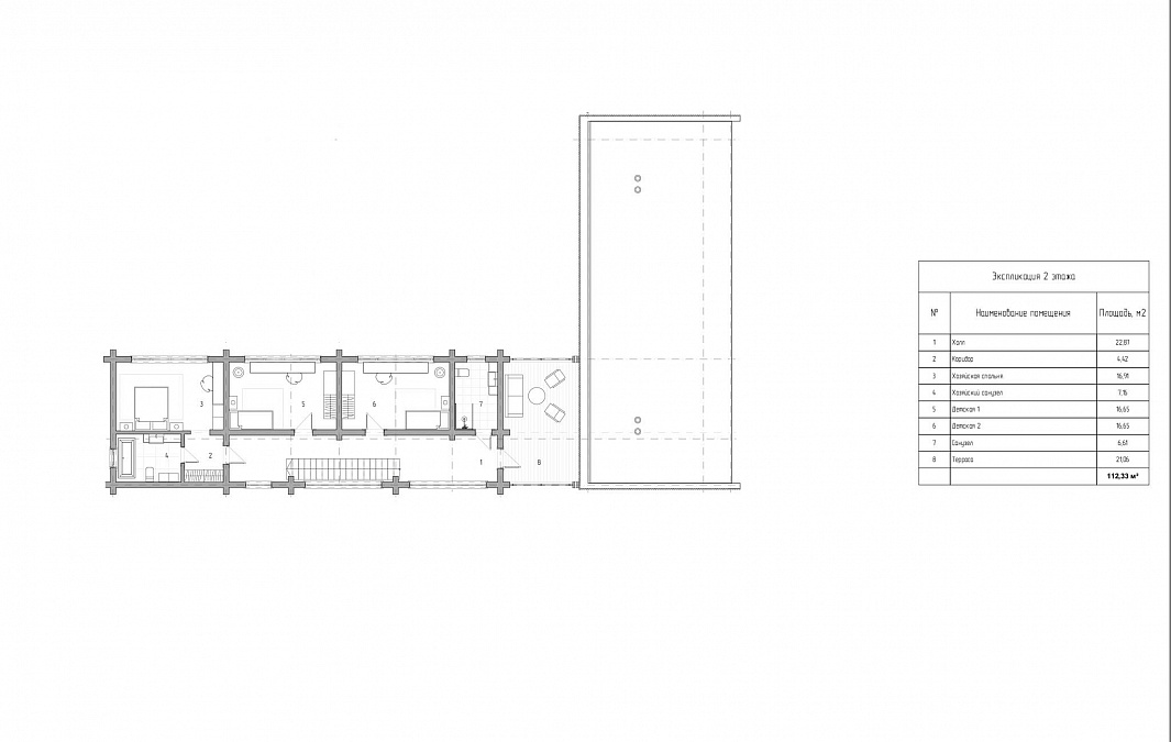
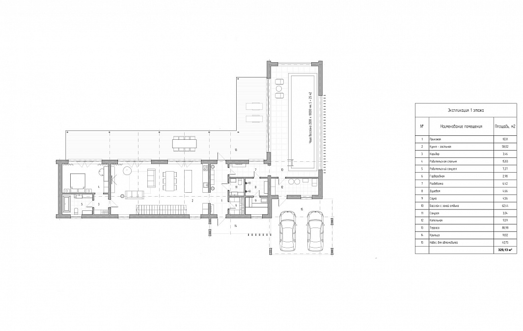
Планировка дома решена в два уровня и учитывает функциональное зонирование помещений на гостевые и приватные зоны.

В доме запроектировано: прихожая с открытой вешалкой для верхней одежды; гардеробная; гостевой санузел; кухня-гостиная с диванной группой, зоной просмотра ТВ, кухней с островом и столовой группой на 6 персон. Из кухни-гостиной предусмотрены панорамные окна с выходом на открытую террасу; родительская спальня, при которой расположена отдельная ванная комната; раздевалка; помывочная; сауна; бассейн 2,5х10 метров с зоной отдыха и выходом на террасу; котельная.

Второй этаж приватный, на котором расположены 2 детские; санузел с душем; хозяйская спальня при которой предусмотрена ванная комната с санузлом; выход на крытый неостеклённый балкон второго этажа с зоной отдыха. При доме расположен крытый навес на два машино-места и крыльцо с главным входом с деревянной отделкой.

Стоимость стенового комплекта

от 8 533 000 ₽

Общая площадь

441 м²

Площадь помещений

279 м²

Визуализации проекта

Визуализации проекта

Архитектурное решение образа представлено в формате 3D-модели. Фотореалистичная визуализация дает полное понимание, как будет выглядеть Ваш будущий дом.

Фото дома-бани Стремиловское
Фото дома-бани Стремиловское
Фото дома-бани Стремиловское
/

Планировка

Фото дома-бани Стремиловское
Фото дома-бани Стремиловское
/

Планировка

Планировочное решение выполняется в соответствии с заданием на проектирование, исходными данными и с учетом функционального зонирования помещений. Мы тщательно и серьезно относимся к этапу составления планировочного решения вплоть до расстановки мебели, так как от этого в будущем зависит Ваш комфорт и удобство проживания в доме.

Похожие объекты