СМОТРЕТЬ ВСЕ
Офис
Московская область,
Одинцовский район,
поселок Горки-2,
Садовый центр “Горки-Парк”

Ежедневно с 10:00 до 21:00
+7 499 938 93 08
info@artkelo.ru

Дом Калининград

Стоимость стенового комплекта

от 11 034 000 ₽

Общая площадь

228 м²

Площадь помещений

147 м²

Фото дома-бани Дом Калининград
Стоимость стенового комплекта

от 11 034 000 ₽

Общая площадь

228 м²

Площадь помещений

147 м²

Двухэтажный загородный дом из сухостойной полярной сосны Кело со вторым светом.

Архитектурно-пространственная композиция дома представлена стилем hi-tech. Вдохновляясь строгостью и четкостью линий стиля hi-tech, естественностью бревна, ландшафтом участков, мы спроектировали дом, который не конфликтует с окружающей средой, а дополняет ее. Здесь стираются границы между природной и рукотворной красотой.

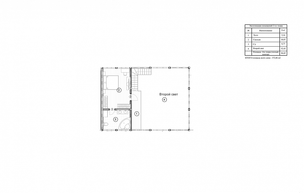
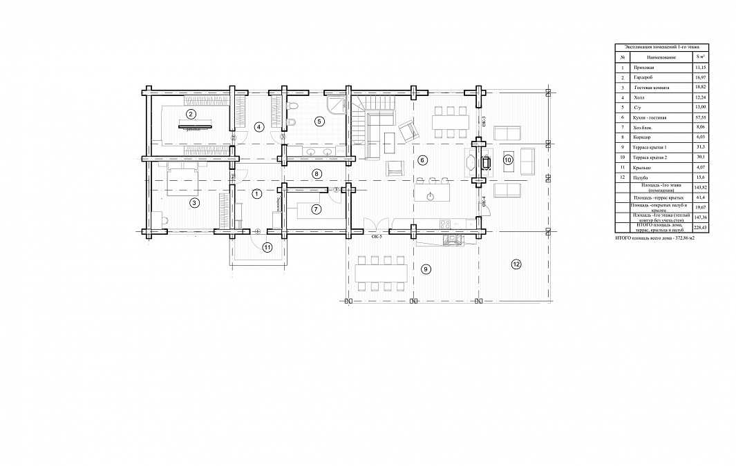
На первом этаже доме расположена кухня-гостиная, гостевая комната, прихожая, гардероб, холл, санузел и хозяйственный блок. На втором этаже дома расположена хозяйская спальня с собственным санузлом.

Главная особенность дома – это второй свет. Данный архитектурный прием позволяет зрительно увеличить пространство и наполнить его светом. Также в доме предусмотрен отдельный гараж на 2 машино-места и 2 крытые террасы.

Стоимость стенового комплекта

от 11 034 000 ₽

Общая площадь

228 м²

Площадь помещений

147 м²

Визуализации проекта

Визуализации проекта

Архитектурное решение образа представлено в формате 3D-модели. Фотореалистичная визуализация дает полное понимание, как будет выглядеть Ваш будущий дом.

Фото дома-бани Дом Калининград
Фото дома-бани Дом Калининград
Фото дома-бани Дом Калининград
Фото дома-бани Дом Калининград
/

Планировка

Фото дома-бани Дом Калининград
Фото дома-бани Дом Калининград
Фото дома-бани Дом Калининград
/

Планировка

Планировочное решение выполняется в соответствии с заданием на проектирование, исходными данными и с учетом функционального зонирования помещений. Мы тщательно и серьезно относимся к этапу составления планировочного решения вплоть до расстановки мебели, так как от этого в будущем зависит Ваш комфорт и удобство проживания в доме.

Похожие объекты