СМОТРЕТЬ ВСЕ
Офис
Московская область,
Одинцовский район,
поселок Горки-2,
Садовый центр “Горки-Парк”

Ежедневно с 10:00 до 21:00
+7 499 938 93 08
info@artkelo.ru

Родники

Стоимость стенового комплекта

от 8 239 000 ₽

Общая площадь

188 м²

Площадь помещений

148 м²

Фото дома-бани Родники
Стоимость стенового комплекта

от 8 239 000 ₽

Общая площадь

188 м²

Площадь помещений

148 м²

Двухэтажный запроектирован для круглогодичного проживания.

Архитектурное решение образа дома - объёмно-пространственная композиция горизонтальной направленности, подчёркнутая линиями кровель, архитектурными элементами и деталями. Образ современный и выразительный, сочетающий четкие геометрические формы и материалы сприродной красотой бревен и деревянных элементов. Дом состоит из двух горизонтальных объемов, что придает образу большую выразительность инеобычность. Дом имеет металлические элементы и панорамные окна. Наличники окон в бревенчатых стенах - узкие, доска на ребре; верхний -широкий, чтобы закрыть усадочные зазоры над проемами.

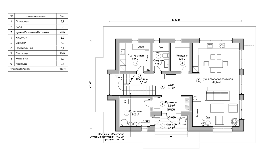
В доме на 1 этаже размещаются: прихожая, котельная, холл, лестница, постирочная, санузел, кладовая и кухня-столовая-гостиная, а также крыльцо главного входа.

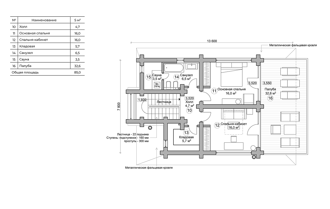
В доме на 2 этаже размещаются: холл с лестницей, санузел, сауна, кладовая, спальня-кабинет и основная спальня, а также палуба.

Стоимость стенового комплекта

от 8 239 000 ₽

Общая площадь

188 м²

Площадь помещений

148 м²

Визуализации проекта

Визуализации проекта

Архитектурное решение образа представлено в формате 3D-модели. Фотореалистичная визуализация дает полное понимание, как будет выглядеть Ваш будущий дом.

Фото дома-бани Родники
Фото дома-бани Родники
Фото дома-бани Родники
Фото дома-бани Родники
/

Планировка

Фото дома-бани Родники
Фото дома-бани Родники
/

Планировка

Планировочное решение выполняется в соответствии с заданием на проектирование, исходными данными и с учетом функционального зонирования помещений. Мы тщательно и серьезно относимся к этапу составления планировочного решения вплоть до расстановки мебели, так как от этого в будущем зависит Ваш комфорт и удобство проживания в доме.

Похожие объекты