СМОТРЕТЬ ВСЕ
Офис
Московская область,
Одинцовский район,
поселок Горки-2,
Садовый центр “Горки-Парк”

Ежедневно с 10:00 до 21:00
+7 499 938 93 08
info@artkelo.ru

Завидово - 2

Стоимость стенового комплекта

По запросу

Общая площадь

374 м²

Площадь помещений

196 м²

Фото дома-бани Завидово - 2
Стоимость стенового комплекта

По запросу

Общая площадь

374 м²

Площадь помещений

196 м²

Деревянная баня из сухостойной полярной сосны Кело с отдельной верандой.

Архитектурное решение образа бани - это простые, четкие и выразительные решения: двускатная кровля, бревенчатые стены и цоколь, отделанный природным камнем. Функционально проект состоит из 3-х частей: баня, веранда и общая терраса. Вокруг здания сделана палуба.

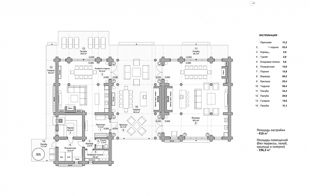
Планировка бани включает в себя прихожую, коридор, туалет, кладовую, помывочную, парную, комнату отдыха, а также террасу, открытые палубу и обходную галерею./p>

Стоимость стенового комплекта

По запросу

Общая площадь

374 м²

Площадь помещений

196 м²

Визуализации проекта

Визуализации проекта

Архитектурное решение образа представлено в формате 3D-модели. Фотореалистичная визуализация дает полное понимание, как будет выглядеть Ваша будущая баня.

Фото дома-бани Завидово - 2
Фото дома-бани Завидово - 2
Фото дома-бани Завидово - 2
/

Планировка

Фото дома-бани Завидово - 2
/

Планировка

Планировочное решение выполняется в соответствии с заданием на проектирование, исходными данными и с учетом функционального зонирования помещений. Мы тщательно и серьезно относимся к этапу составления планировочного решения вплоть до расстановки мебели, так как от этого в будущем зависит Ваш комфорт и удобство проживания в бане.

Похожие объекты