СМОТРЕТЬ ВСЕ
Офис
Московская область,
Одинцовский район,
поселок Горки-2,
Садовый центр “Горки-Парк”

Ежедневно с 10:00 до 21:00
+7 499 938 93 08
info@artkelo.ru

Пестово

Стоимость стенового комплекта

от 14 374 000 ₽

Общая площадь

189 м²

Площадь помещений

103 м²

Фото дома-бани Пестово
Стоимость стенового комплекта

от 14 374 000 ₽

Общая площадь

189 м²

Площадь помещений

103 м²

Двухэтажный банный комплекс с помещениями для персонала.

Архитектурное решение комплекса – это стиль hi-tech. Сруб из полярной сосны Кело органично сочетается с панорамным остеклением.

На 1 этаже комплекса расположены комната отдыха, раздевалка, помывочная и просторная парная – 12,2 м2. Кроме того, также есть отдельная жилая комната, которая будет использоваться в качестве кухни-гостиной для персонала.

Контур дома огибает открытая палуба, где расположены обеденная зона и купель. Места хватит и для обустройства летней кухни.

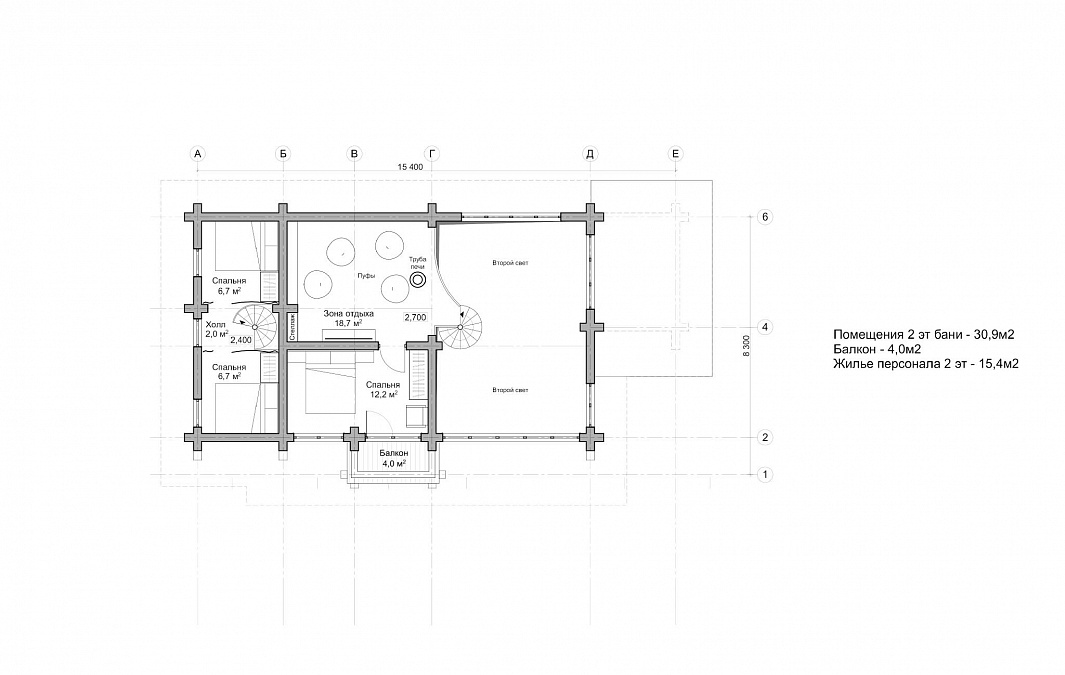
На 2 этаже расположены 3 спальни и зона отдыха.

Если у вас есть необходимость в обустройстве отдельного жилья для персонала, то советуем присмотреться к этому проекту.

Стоимость стенового комплекта

от 14 374 000 ₽

Общая площадь

189 м²

Площадь помещений

103 м²

Визуализации проекта

Визуализации проекта

Архитектурное решение образа представлено в формате 3D-модели. Фотореалистичная визуализация дает полное понимание, как будет выглядеть Ваша будущая баня.

Фото дома-бани Пестово
Фото дома-бани Пестово
Фото дома-бани Пестово
Фото дома-бани Пестово
Фото дома-бани Пестово
Фото дома-бани Пестово
/

Планировка

Фото дома-бани Пестово
Фото дома-бани Пестово
/

Планировка

Планировочное решение выполняется в соответствии с заданием на проектирование, исходными данными и с учетом функционального зонирования помещений. Мы тщательно и серьезно относимся к этапу составления планировочного решения вплоть до расстановки мебели, так как от этого в будущем зависит Ваш комфорт и удобство.

Похожие объекты