СМОТРЕТЬ ВСЕ
Офис
Московская область,
Одинцовский район,
поселок Горки-2,
Садовый центр “Горки-Парк”

Ежедневно с 10:00 до 21:00
+7 499 938 93 08
info@artkelo.ru

Трувиль

Стоимость стенового комплекта

от 27 104 000 ₽

Общая площадь

243 м²

Площадь помещений

173 м²

Фото дома-бани Трувиль
Стоимость стенового комплекта

от 27 104 000 ₽

Общая площадь

243 м²

Площадь помещений

173 м²

Банный комплекс из сухостойной полярной сосны Кело для тех, кто по-настоящему любит русскую баню.

Архитектурное решение образа представлено традиционными идеями для бани: двускатная кровля, открытая стропильная система, кровля из лиственничной дранки. Конечно, мы добавили в проект несколько современных решений, например, мансардные окна, благодаря которым баня будет наполняться вторым светом. Или же панорамные окна-двери, стирающие границы между баней и природой вокруг… Сказка!

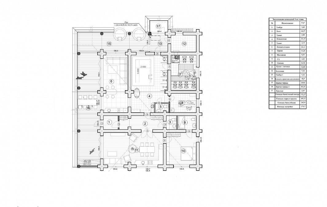
Планировочное решение выполнено в соответствии с заданием на проектирование и включает в себя тамбур, холл, помывочную, 3 санузла, комнату отдыха, парную, массажную, спальню, кухню-гостиную, котельную, тамбур и даже комнату для хранения веников.

Стоимость стенового комплекта

от 27 104 000 ₽

Общая площадь

243 м²

Площадь помещений

173 м²

Визуализации проекта

Визуализации проекта

Архитектурное решение образа представлено в формате 3D-модели. Фотореалистичная визуализация дает полное понимание, как будет выглядеть Ваша будущая баня.

Фото дома-бани Трувиль
Фото дома-бани Трувиль
Фото дома-бани Трувиль
Фото дома-бани Трувиль
/

Планировка

Фото дома-бани Трувиль
/

Планировка

Планировочное решение выполняется в соответствии с заданием на проектирование, исходными данными и с учетом функционального зонирования помещений. Мы тщательно и серьезно относимся к этапу составления планировочного решения вплоть до расстановки мебели, так как от этого в будущем зависит Ваш комфорт и удобство проживания в бане.

Похожие объекты