СМОТРЕТЬ ВСЕ
Офис
Московская область,
Одинцовский район,
поселок Горки-2,
Садовый центр “Горки-Парк”

Ежедневно с 10:00 до 21:00
+7 499 938 93 08
info@artkelo.ru

Оборенское поместье-1

Стоимость стенового комплекта

По запросу

Общая площадь

330 м²

Площадь помещений

229 м²

Фото дома-бани Оборенское поместье-1
Стоимость стенового комплекта

По запросу

Общая площадь

330 м²

Площадь помещений

229 м²

Настоящий СПА-комплекс для отдыха душой и телом.

Архитектурно-пространственная композиция – это комбинация традиционного и современного: проекте органично сочетается двускатная кровля с панорамными окнами от пола до потолка.

Здесь много необычных комбинаций, например, русская парная и восточный хамам Кроме того, объект состоит из холла, раздевалки, помывочной, комнаты отдыха, спальни, террасы, 4 палуб и технического помещения. Есть даже игровой зал, в котором можно обустроить бильярдную комнату или домашний кинотеатр.

В этом проекте наш архитектор постарался реализовать все мечты заказчика. И, кажется, у него это получилось!

Стоимость стенового комплекта

По запросу

Общая площадь

330 м²

Площадь помещений

229 м²

Визуализации проекта

Визуализации проекта

Архитектурное решение образа представлено в формате 3D-модели. Фотореалистичная визуализация дает полное понимание, как будет выглядеть Ваша будущая баня.

Фото дома-бани Оборенское поместье-1
Фото дома-бани Оборенское поместье-1
Фото дома-бани Оборенское поместье-1
Фото дома-бани Оборенское поместье-1
/

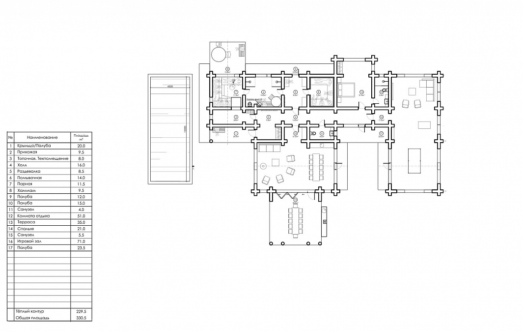
Планировка

Фото дома-бани Оборенское поместье-1
/

Планировка

Планировочное решение выполняется в соответствии с заданием на проектирование, исходными данными и с учетом функционального зонирования помещений. Мы тщательно и серьезно относимся к этапу составления планировочного решения вплоть до расстановки мебели, так как от этого в будущем зависит Ваш комфорт и удобство проживания в бане.

Похожие объекты