СМОТРЕТЬ ВСЕ
Офис
Московская область,
Одинцовский район,
поселок Горки-2,
Садовый центр “Горки-Парк”

Ежедневно с 10:00 до 21:00
+7 499 938 93 08
info@artkelo.ru

Смоленск

Стоимость стенового комплекта

от 4 855 000 ₽

Общая площадь

45 м²

Площадь помещений

37 м²

Фото дома-бани Смоленск
Стоимость стенового комплекта

от 4 855 000 ₽

Общая площадь

45 м²

Площадь помещений

37 м²

Небольшая деревянная баня из Кело.

Архитектурное решение образа представлено традиционной прямоугольной формой. Особенность бани - это уличная топка печи.

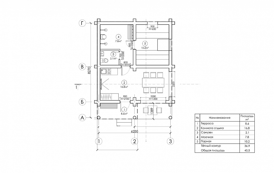
Планировочное решение представлено террасой, комнатой отдыха, санузлом, моечной и парной - ничего лишнего.

Стоимость стенового комплекта

от 4 855 000 ₽

Общая площадь

45 м²

Площадь помещений

37 м²

Визуализации проекта

Визуализации проекта

Архитектурное решение образа представлено в формате 3D-модели. Фотореалистичная визуализация дает полное понимание, как будет выглядеть Ваша будущая баня.

Фото дома-бани Смоленск
Фото дома-бани Смоленск
Фото дома-бани Смоленск
Фото дома-бани Смоленск
/

Планировка

Фото дома-бани Смоленск
/

Планировка

Планировочное решение выполняется в соответствии с заданием на проектирование, исходными данными и с учетом функционального зонирования помещений. Мы тщательно и серьезно относимся к этапу составления планировочного решения вплоть до расстановки мебели, так как от этого в будущем зависит Ваш комфорт и удобство проживания в бане.

Похожие объекты