СМОТРЕТЬ ВСЕ
Офис
Московская область,
Одинцовский район,
поселок Горки-2,
Садовый центр “Горки-Парк”

Ежедневно с 10:00 до 21:00
+7 499 938 93 08
info@artkelo.ru

Одинцово

Стоимость стенового комплекта

от 6 915 000 ₽

Общая площадь

75 м²

Площадь помещений

54 м²

Фото дома-бани Одинцово
Стоимость стенового комплекта

от 6 915 000 ₽

Общая площадь

75 м²

Площадь помещений

54 м²

Недавно мы завершили полностью завершили архитектурное проектирование этой чудесной бани, общей площадью 75 м2. И, конечно, хотим поделиться с вами получившимся результатом - вдруг это баня вашей мечты?

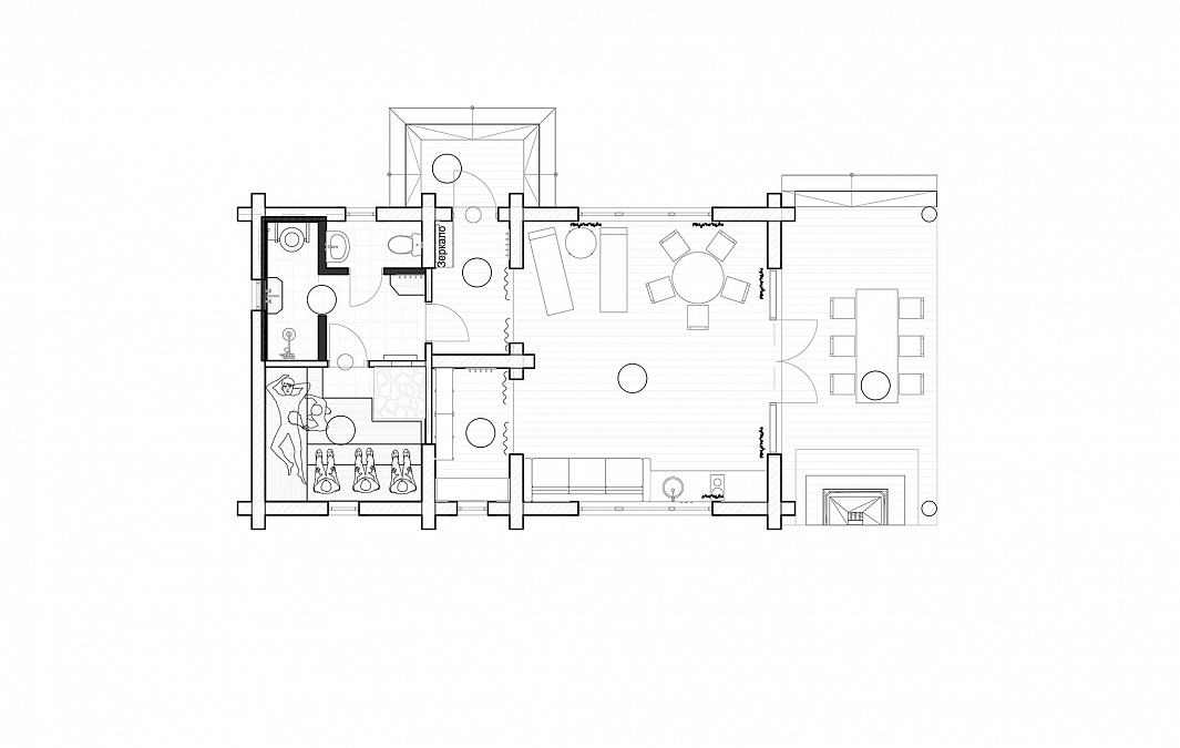
В бане нас встречает прихожая, из которой можно пройти как в банную зону, так и в зону отдыха. Банная часть здесь очень продуманная: уже на этапе проектирования в парной мы продумали расположение полоков для парения и для сидения, а также место для печи. Это очень важно! Конечно, здесь также есть помывочная и санузел.

Двигаемся в комнату отдыха? Здесь расположилась мини-кухня с мягкой группой. А уже из комнаты отдыха мы попадаем в просторную открытую террасу (почти 20 м2!). Здесь можно обустроить обеденную зону на 6-8 человек, а также установить летнюю кухню. Места точно хватит.

Архитектурная композиция бани представлена прямоугольной формой. Это очень удобно для адаптации будущего проекта: всегда можно добавить дополнительные помещения или увеличить площадь существующих.

Если вы в поисках бани вашей мечты, то приглядитесь - возможно, она уже перед вами.

Стоимость стенового комплекта

от 6 915 000 ₽

Общая площадь

75 м²

Площадь помещений

54 м²

Визуализации проекта

Визуализации проекта

Архитектурное решение образа представлено в формате 3D-модели. Фотореалистичная визуализация дает полное понимание, как будет выглядеть Ваша будущая баня.

Фото дома-бани Одинцово
Фото дома-бани Одинцово
Фото дома-бани Одинцово
Фото дома-бани Одинцово
/

Планировка

Фото дома-бани Одинцово
/

Планировка

Планировочное решение выполняется в соответствии с заданием на проектирование, исходными данными и с учетом функционального зонирования помещений. Мы тщательно и серьезно относимся к этапу составления планировочного решения вплоть до расстановки мебели, так как от этого в будущем зависит Ваш комфорт и удобство проживания в бане.

Похожие объекты