СМОТРЕТЬ ВСЕ
Офис
Московская область,
Одинцовский район,
поселок Горки-2,
Садовый центр “Горки-Парк”

Ежедневно с 10:00 до 21:00
+7 499 938 93 08
info@artkelo.ru

Севастополь

Стоимость стенового комплекта

от 8 092 000 ₽

Общая площадь

69 м²

Площадь помещений

42 м²

Фото дома-бани Севастополь
Стоимость стенового комплекта

от 8 092 000 ₽

Общая площадь

69 м²

Площадь помещений

42 м²

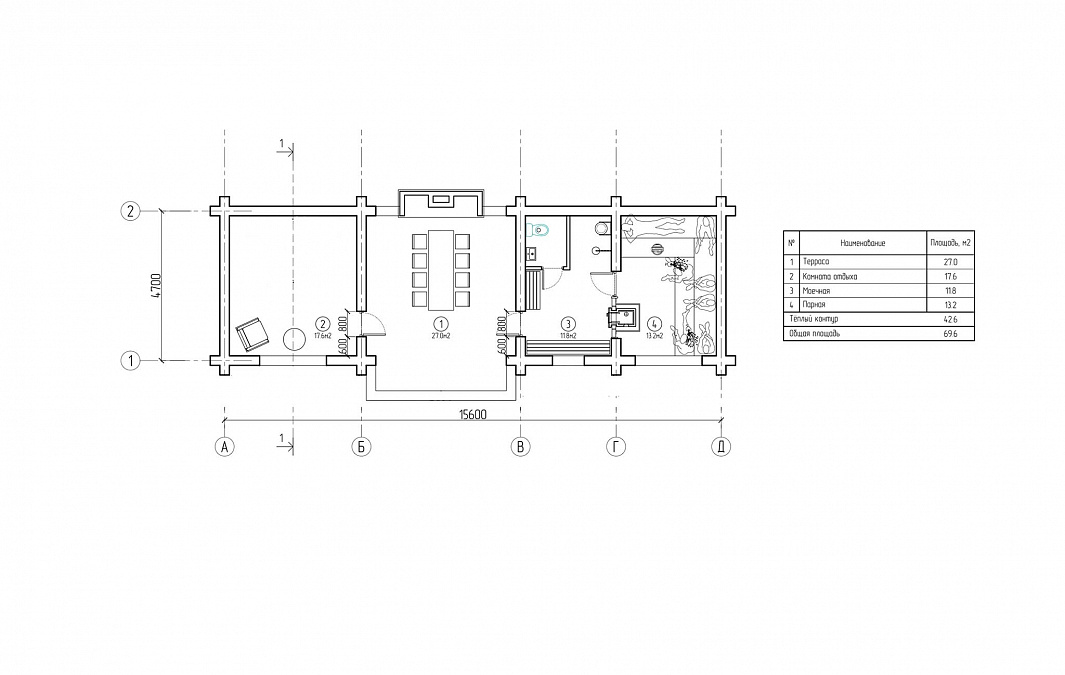
Одноэтажная баня из сухостойной полярной сосны Кело.

Здесь очень интересное и нестандартное планировочное решение: между комнатой отдыха и банной частью с моечной и парной есть крытая терраса, которая соединяет две части одной бани. На террасе можно поместить дополнительную обеденную зону или же купель.

А изолированная комната отдыха позволяет добавить бане еще одну функцию – функцию гостевого дома, ведь здесь могут расположиться ваши друзья и близкие, когда приезжают к вам в гости.

Стоимость стенового комплекта

от 8 092 000 ₽

Общая площадь

69 м²

Площадь помещений

42 м²

Визуализации проекта

Визуализации проекта

Архитектурное решение образа представлено в формате 3D-модели. Фотореалистичная визуализация дает полное понимание, как будет выглядеть Ваша будущая баня.

Фото дома-бани Севастополь
Фото дома-бани Севастополь
Фото дома-бани Севастополь
Фото дома-бани Севастополь
/

Планировка

Фото дома-бани Севастополь
/

Планировка

Планировочное решение выполняется в соответствии с заданием на проектирование, исходными данными и с учетом функционального зонирования помещений. Мы тщательно и серьезно относимся к этапу составления планировочного решения вплоть до расстановки мебели, так как от этого в будущем зависит Ваш комфорт и удобство проживания в бане.

Похожие объекты