СМОТРЕТЬ ВСЕ
Офис
Московская область,
Одинцовский район,
поселок Горки-2,
Садовый центр “Горки-Парк”

Пн.–сб.: с 10:00 до 21:00
Вс.: выходной
+7 499 938 93 08
info@artkelo.ru

Белгород

Стоимость стенового комплекта

от 10 004 000 ₽

Общая площадь

74 м²

Площадь помещений

62 м²

Фото дома-бани Белгород
Стоимость стенового комплекта

от 10 004 000 ₽

Общая площадь

74 м²

Площадь помещений

62 м²

Архитектурное решение образа бани – объёмно-пространственная композиция горизонтальной направленности, подчёркнутая линиями кровель, архитектурными элементами и деталями, сочетающая современное видение с традициями деревянной архитектуры.

Широкие, относительно пологие крыши (18 градусов) объединяют и зрительно, и фактически занижают объём и усиливают его связь с ландшафтом. Объем бани угловой, формирует дворовое пространство. Терраса при главном входе создает интересную пластику фасадов.

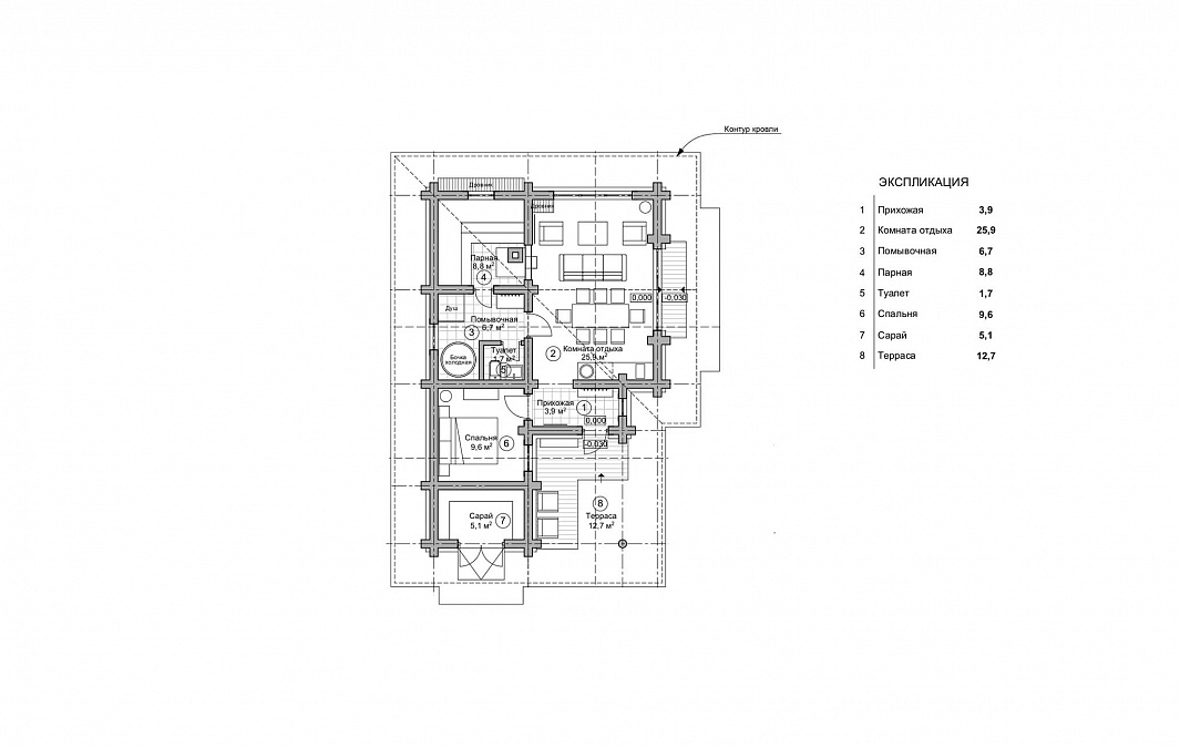
Планировка бани выполнена в соответствии с заданием на проектирование и исходными данными, с учётом функционального зонирования помещений и включает прихожую, туалет, спальню, комнату отдыха, помывочную, парную, сарай, а также крытую террасу при главном входе.

Стоимость стенового комплекта

от 10 004 000 ₽

Общая площадь

74 м²

Площадь помещений

62 м²

Визуализации проекта

Визуализации проекта

Архитектурное решение образа представлено в формате 3D-модели. Фотореалистичная визуализация дает полное понимание, как будет выглядеть Ваша будущая баня.

Фото дома-бани Белгород
Фото дома-бани Белгород
Фото дома-бани Белгород
Фото дома-бани Белгород
/

Планировка

Фото дома-бани Белгород
/

Планировка

Планировочное решение выполняется в соответствии с заданием на проектирование, исходными данными и с учетом функционального зонирования помещений. Мы тщательно и серьезно относимся к этапу составления планировочного решения вплоть до расстановки мебели, так как от этого в будущем зависит Ваш комфорт и удобство проживания в бане.

Похожие объекты