СМОТРЕТЬ ВСЕ
Офис
Московская область,
Одинцовский район,
поселок Горки-2,
Садовый центр “Горки-Парк”

Ежедневно с 10:00 до 21:00
+7 499 938 93 08
info@artkelo.ru

Баня Калининград

Стоимость стенового комплекта

от 9 122 000 ₽

Общая площадь

157 м²

Площадь помещений

120 м²

Фото дома-бани Баня Калининград
Стоимость стенового комплекта

от 9 122 000 ₽

Общая площадь

157 м²

Площадь помещений

120 м²

Баня в стиле hi-tech с односкатной кровлей.

Эта баня будет построена на участке вместе с домом из Кело. Получился настоящий архитектурный ансамбль, дом и баня органично друг друга дополняют.

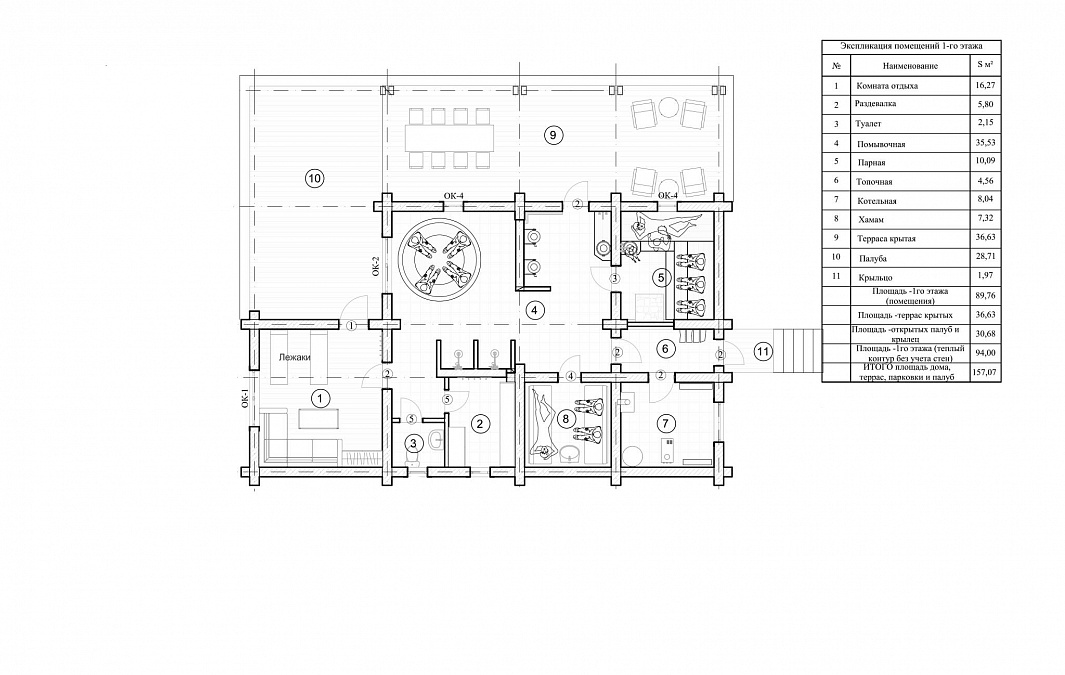
Композиционно баня состоит из комнаты отдыха, помывочной, парной, хамама, топочной, котельной, раздевалки, туалета и крытой террасы.

Стоимость стенового комплекта

от 9 122 000 ₽

Общая площадь

157 м²

Площадь помещений

120 м²

Визуализации проекта

Визуализации проекта

Архитектурное решение образа представлено в формате 3D-модели. Фотореалистичная визуализация дает полное понимание, как будет выглядеть Ваша будущая баня.

Фото дома-бани Баня Калининград
Фото дома-бани Баня Калининград
Фото дома-бани Баня Калининград
/

Планировка

Фото дома-бани Баня Калининград
/

Планировка

Планировочное решение выполняется в соответствии с заданием на проектирование, исходными данными и с учетом функционального зонирования помещений. Мы тщательно и серьезно относимся к этапу составления планировочного решения вплоть до расстановки мебели, так как от этого в будущем зависит Ваш комфорт и удобство проживания в бане.

Похожие объекты