СМОТРЕТЬ ВСЕ
Офис
Московская область,
Одинцовский район,
поселок Горки-2,
Садовый центр “Горки-Парк”

Ежедневно с 10:00 до 21:00
+7 499 938 93 08
info@artkelo.ru

Завидово - 1

Стоимость стенового комплекта

от 6 621 000 ₽

Общая площадь

103 м²

Площадь помещений

54 м²

Фото дома-бани Завидово - 1
Стоимость стенового комплекта

от 6 621 000 ₽

Общая площадь

103 м²

Площадь помещений

54 м²

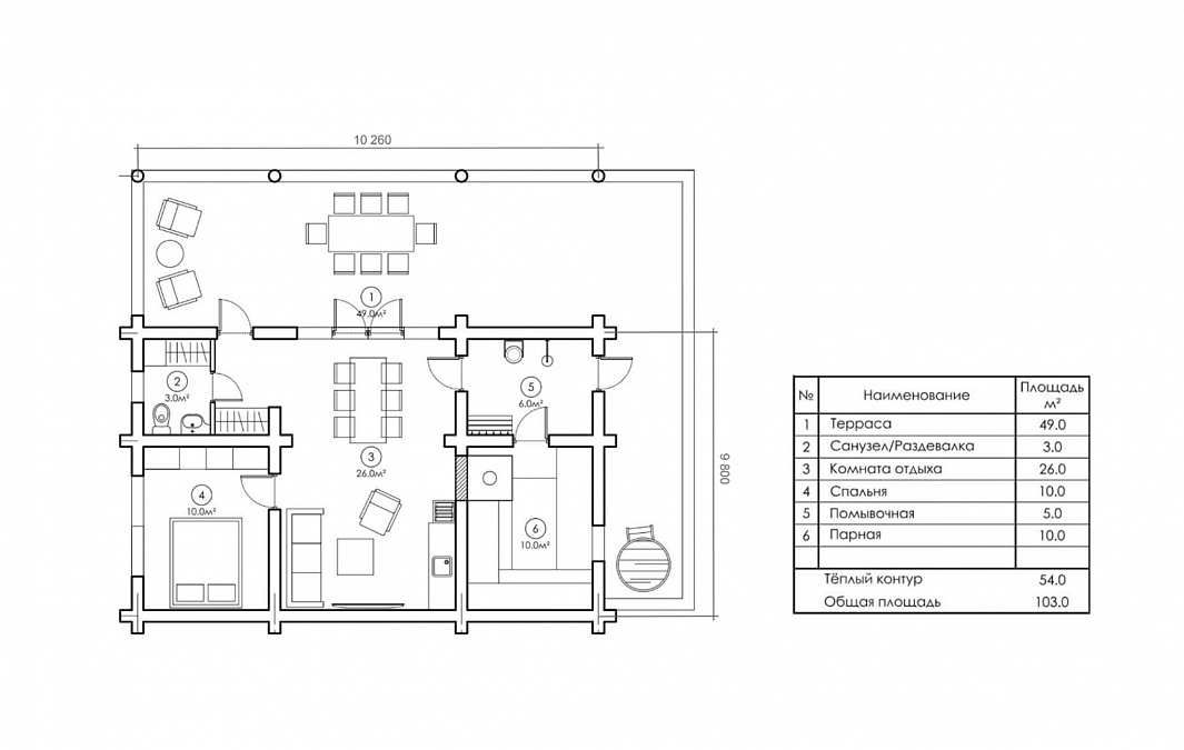
Баня с односкатной кровлей - очень интересное и современное решение. Такая архитектурная композиция подойдет вам, если вы предпочитаете стиль hi-tech, или у вашего коттеджного поселка есть определенные требования для строительства.

Композиционно баня состоит из открытой террасы, комнаты отдыха, спальни, парной и помывочной.

Изюминка бани - это, конечно, терраса, общей площадью почти 50 м2! Помимо того, что здесь есть места для оборудования полноценной летней кухне, здесь можно разместить купели с горячей и холодной водой.

Стоимость стенового комплекта

от 6 621 000 ₽

Общая площадь

103 м²

Площадь помещений

54 м²

Визуализации проекта

Визуализации проекта

Архитектурное решение образа представлено в формате 3D-модели. Фотореалистичная визуализация дает полное понимание, как будет выглядеть Ваша будущая баня.

Фото дома-бани Завидово - 1
Фото дома-бани Завидово - 1
Фото дома-бани Завидово - 1
Фото дома-бани Завидово - 1
/

Планировка

Фото дома-бани Завидово - 1
/

Планировка

Планировочное решение выполняется в соответствии с заданием на проектирование, исходными данными и с учетом функционального зонирования помещений. Мы тщательно и серьезно относимся к этапу составления планировочного решения вплоть до расстановки мебели, так как от этого в будущем зависит Ваш комфорт и удобство проживания в бане.

Похожие объекты