СМОТРЕТЬ ВСЕ
Офис
Московская область,
Одинцовский район,
поселок Горки-2,
Садовый центр “Горки-Парк”

Ежедневно с 10:00 до 21:00
+7 499 938 93 08
info@artkelo.ru

Пчелка

Стоимость стенового комплекта

от 27 104 000 ₽

Общая площадь

653 м²

Площадь помещений

438 м²

Фото дома-бани Пчелка
Стоимость стенового комплекта

от 27 104 000 ₽

Общая площадь

653 м²

Площадь помещений

438 м²

Одноэтажный загородный дом с цокольным этажом – идеальный проект дома для семьи из 5-6 человек.

Архитектурное решение дома представлено сочетанием традиций и стиля hi-tech и местами даже напоминает альпийское шале: бревенчатый верх, каменный низ. Так, покрытие привычной для нас двускатной кровли – фальц, а материал отделки цокольного этажа – камень.

На первом этаже дома расположены общие зоны отдыха и жилые комнаты: кухня, столовая с барбекю, кладовая продуктов, 4 спальни, гардеробные и санузлы. Из столовой зоны открывается панорамный вид на участок. Здесь же можно выйти на открытую террасу, где можно обустроить летнюю кухню, шезлонги для принятия солнечных ванн – места хватит всем.

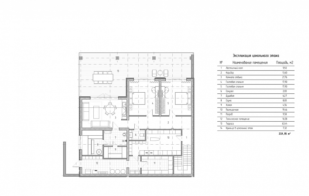
На цокольном этаже дома расположена банная зона с парной, хаммамом и зоной отдыха. Кроме того, здесь есть 2 гостевые спальни, которые можно использовать для персонала.

Стоимость стенового комплекта

от 27 104 000 ₽

Общая площадь

653 м²

Площадь помещений

438 м²

Визуализации проекта

Визуализации проекта

Архитектурное решение образа представлено в формате 3D-модели. Фотореалистичная визуализация дает полное понимание, как будет выглядеть Ваш будущий дом.

Фото дома-бани Пчелка
Фото дома-бани Пчелка
Фото дома-бани Пчелка
/

Планировка

Фото дома-бани Пчелка
Фото дома-бани Пчелка
/

Планировка

Планировочное решение выполняется в соответствии с заданием на проектирование, исходными данными и с учетом функционального зонирования помещений. Мы тщательно и серьезно относимся к этапу составления планировочного решения вплоть до расстановки мебели, так как от этого в будущем зависит Ваш комфорт и удобство проживания в доме.