СМОТРЕТЬ ВСЕ
Офис
Московская область,
Одинцовский район,
поселок Горки-2,
Садовый центр “Горки-Парк”

Ежедневно с 10:00 до 21:00
+7 499 938 93 08
info@artkelo.ru

Санкт-Петербург

Стоимость стенового комплекта

от 17 694 000 ₽

Общая площадь

194 м²

Площадь помещений

92 м²

Фото дома-бани Санкт-Петербург
Стоимость стенового комплекта

от 17 694 000 ₽

Общая площадь

194 м²

Площадь помещений

92 м²

Проект для настоящих ценителей банной культуры и традиций в сочетании с современными решениями.

Традиционная двускатная кровля гармонирует с панорамным остеклением.

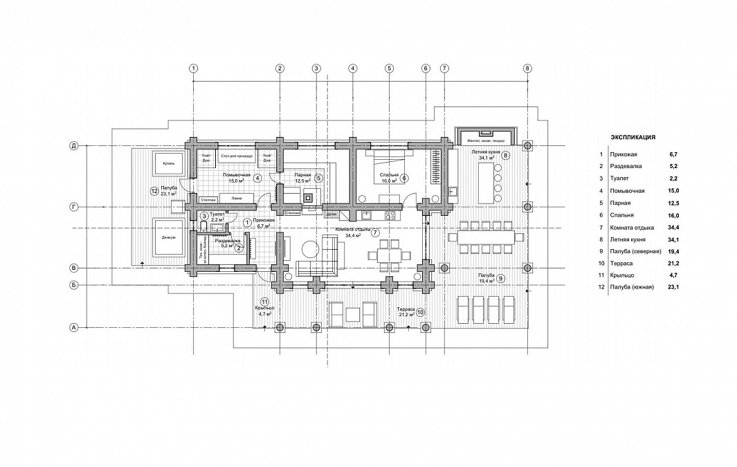
Планировка помещений включает в себя: комнату отдыха, помывочную, парную, раздевалку и... спальню! Мы всегда советуем, если позволяет площадь, предусмотреть место для спальни - это очень практично. Здесь могут останавливаться ваши гости или родители. И вам советуем тоже отдохнуть в такой спальне: ведь сон в бане совсем не такой, как в обычном доме.

Отметим продуманность помывочной: здесь есть все для хорошей запарки. И стол для процедур, и место для ушата и душа. Из помывочной есть выход на открытую палубу с джакузи и купелью.

Конечно, в такой бане нужна кухня. И она есть: на главной террасе предусмотрена летняя кухня с мангалом, казаном и тандыром.

Стоимость стенового комплекта

от 17 694 000 ₽

Общая площадь

194 м²

Площадь помещений

92 м²

Визуализации проекта

Визуализации проекта

Архитектурное решение образа представлено в формате 3D-модели. Фотореалистичная визуализация дает полное понимание, как будет выглядеть Ваша будущая баня.

Фото дома-бани Санкт-Петербург
Фото дома-бани Санкт-Петербург
Фото дома-бани Санкт-Петербург
Фото дома-бани Санкт-Петербург
/

Планировка

Фото дома-бани Санкт-Петербург
/

Планировка

Планировочное решение выполняется в соответствии с заданием на проектирование, исходными данными и с учетом функционального зонирования помещений. Мы тщательно и серьезно относимся к этапу составления планировочного решения вплоть до расстановки мебели, так как от этого в будущем зависит Ваш комфорт и удобство проживания в бане.

Похожие объекты