СМОТРЕТЬ ВСЕ
Офис
Московская область,
Одинцовский район,
поселок Горки-2,
Садовый центр “Горки-Парк”

Пн.–сб.: с 10:00 до 21:00
Вс.: выходной
+7 499 938 93 08
info@artkelo.ru

Озерная

Стоимость стенового комплекта

от 37 908 000 ₽

Общая площадь

225 м²

Площадь помещений

138 м²

Фото дома-бани Озерная
Стоимость стенового комплекта

от 37 908 000 ₽

Общая площадь

225 м²

Площадь помещений

138 м²

Необычная баня со снежной комнатой и купелью, которая рассчитана на большую компанию.

Архитектурное решение образа бани впечатает использованием стоечно-балочной системе при обустройстве террасы, которая опоясывает баню по периметру. Благодаря большому диаметру бревен баня выглядит очень солидно и внушительно.

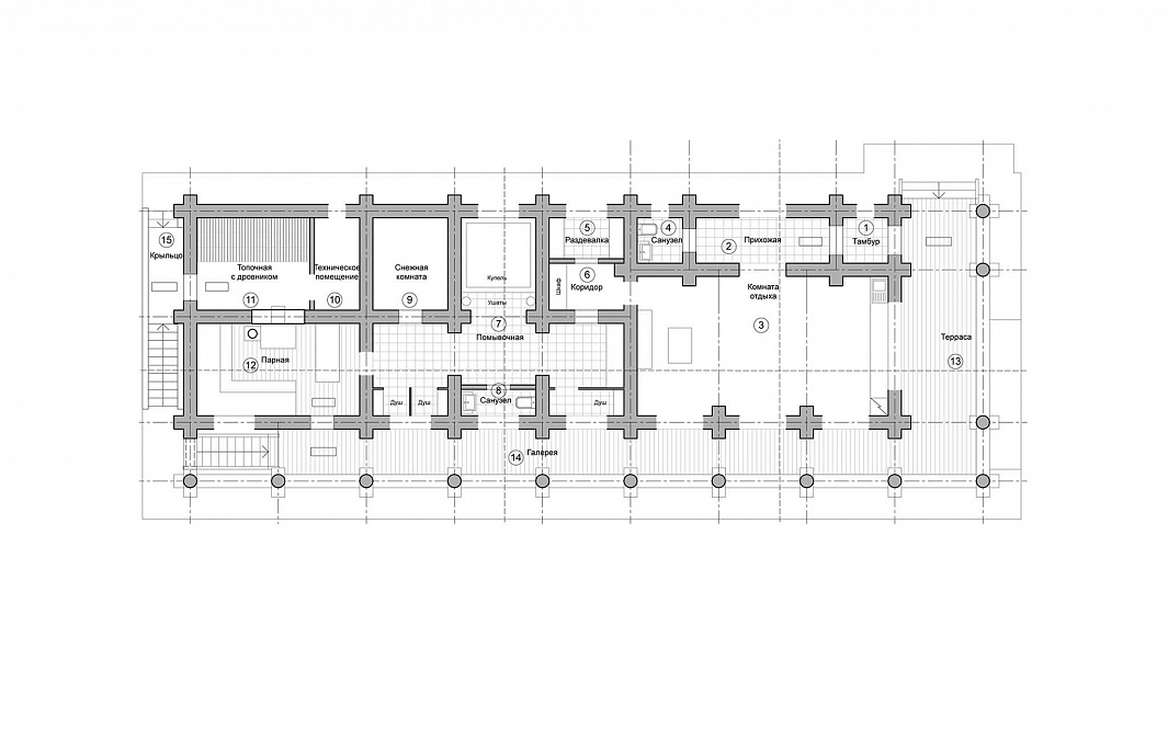
Проект этой одноэтажной бани является своеобразным чек-листом банных помещений. В данном проекте предусмотрено: просторная комната отдыха с кухней, общей площадью более 40 м2; помывочная зона; парная; купель; топочная с дровником; санузел; раздевалка.

В дополнение ко всему в бане есть даже… Снежная комната! Охлаждение тела после парилки - это дополнительная польза здоровью.

Стоимость стенового комплекта

от 37 908 000 ₽

Общая площадь

225 м²

Площадь помещений

138 м²

Визуализации проекта

Визуализации проекта

Архитектурное решение образа представлено в формате 3D-модели. Фотореалистичная визуализация дает полное понимание, как будет выглядеть Ваша будущая баня.

Фото дома-бани Озерная
Фото дома-бани Озерная
Фото дома-бани Озерная
Фото дома-бани Озерная
/

Планировка

Фото дома-бани Озерная
/

Планировка

Планировочное решение выполняется в соответствии с заданием на проектирование, исходными данными и с учетом функционального зонирования помещений. Мы тщательно и серьезно относимся к этапу составления планировочного решения вплоть до расстановки мебели, так как от этого в будущем зависит Ваш комфорт и удобство проживания в бане.

Похожие объекты