СМОТРЕТЬ ВСЕ
Офис
Московская область,
Одинцовский район,
поселок Горки-2,
Садовый центр “Горки-Парк”

Пн.–сб.: с 10:00 до 21:00
Вс.: выходной
+7 499 938 93 08
info@artkelo.ru

Хлепень - 2

Стоимость стенового комплекта

от 11 034 000 ₽

Общая площадь

134 м²

Площадь помещений

86 м²

Фото дома-бани Хлепень - 2
Стоимость стенового комплекта

от 11 034 000 ₽

Общая площадь

134 м²

Площадь помещений

86 м²

Друзья, проект этой бани отличается своим конструктивным решением - разноуровневой кровлей. По отдельности каждый скат представляет собой односкатную конструкцию. Выглядит интересно, правда?

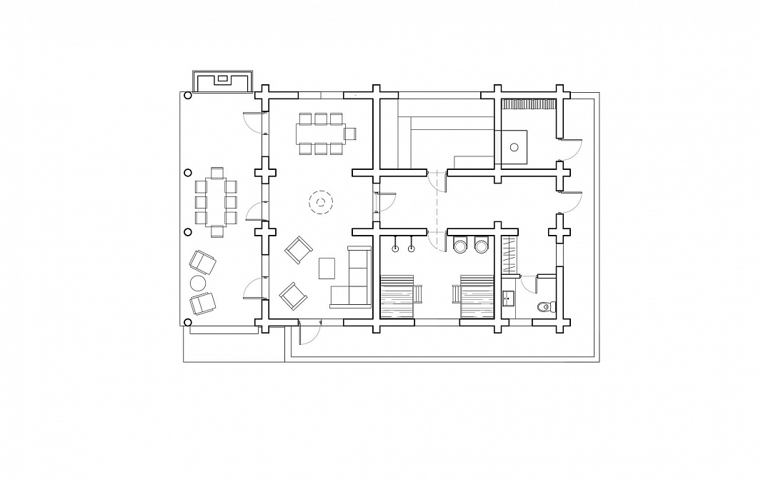
Планировка предусматривает палубу, прихожую, холл, помывочную, парную, спальню, кухню и террасу. Все, что нужно для отдыха душой и телом.

Дополнительное украшение проекта - панорамное остекление.

Проект полностью отражает нашу концепцию - соединяем традиционное и инновационное. И в процессе отделки нужно будет особое внимание уделить мебелировке, чтобы не переборщить с необычными решениями.

Стоимость стенового комплекта

от 11 034 000 ₽

Общая площадь

134 м²

Площадь помещений

86 м²

Визуализации проекта

Визуализации проекта

Архитектурное решение образа представлено в формате 3D-модели. Фотореалистичная визуализация дает полное понимание, как будет выглядеть Ваша будущая баня.

Фото дома-бани Хлепень - 2
Фото дома-бани Хлепень - 2
Фото дома-бани Хлепень - 2
Фото дома-бани Хлепень - 2
/

Планировка

Фото дома-бани Хлепень - 2
/

Планировка

Планировочное решение выполняется в соответствии с заданием на проектирование, исходными данными и с учетом функционального зонирования помещений. Мы тщательно и серьезно относимся к этапу составления планировочного решения вплоть до расстановки мебели, так как от этого в будущем зависит Ваш комфорт и удобство проживания в бане.

Похожие объекты