СМОТРЕТЬ ВСЕ
Офис
Московская область,
Одинцовский район,
поселок Горки-2,
Садовый центр “Горки-Парк”

Ежедневно с 10:00 до 21:00
+7 499 938 93 08
info@artkelo.ru

Соколово

Стоимость стенового комплекта

По запросу

Общая площадь

432,47 м²

Площадь помещений

293,1 м²

Фото бани Соколово
Стоимость стенового комплекта

По запросу

Общая площадь

432,47 м²

Площадь помещений

293,1 м²

Очень элегантная и лаконичная баня.

Главная изюминка — панорамный выход на террасу, который дарит ощущение полной гармонии с природой. В интерьере доминируют натуральные материалы: русский бриар и миланская вишня для дерева, а также бесшовный мрамор для акцентов.

Гостиная зоны отдыха выполнена с учетом максимального комфорта. Мраморный бар и мягкие линии мебели создают атмосферу уюта и расслабления. Динамика стекла и металла наполняет пространство игрой света, усиливая визуальную привлекательность.

Приватная зона оформлена с особым вниманием к деталям: картины в японском стиле и мягкое освещение создают умиротворяющую атмосферу.

Функциональность продумана до мелочей. Встроенные шкафы и качественная шумоизоляция обеспечивают комфорт в каждом уголке.

Зона отдыха после сауны — это отдельное удовольствие. Просторное помещение из черного дерева и серого гранита наполнено естественным светом, а теплый ночной свет ненавязчиво расставляет акценты.

Эта баня — сочетание эстетики, технологий и функциональности, где каждая деталь работает на создание пространства для полного расслабления и восстановления.

Стоимость стенового комплекта

По запросу

Общая площадь

432,47 м²

Площадь помещений

293,1 м²

Визуализации проекта

Визуализации проекта

Архитектурное решение образа представлено в формате 3D-модели. Фотореалистичная визуализация дает полное понимание, как будет выглядеть Ваша будущая баня.
Фото бани Соколово
Фото бани Соколово
Фото бани Соколово
Фото бани Соколово
Фото бани Соколово
Фото бани Соколово
/

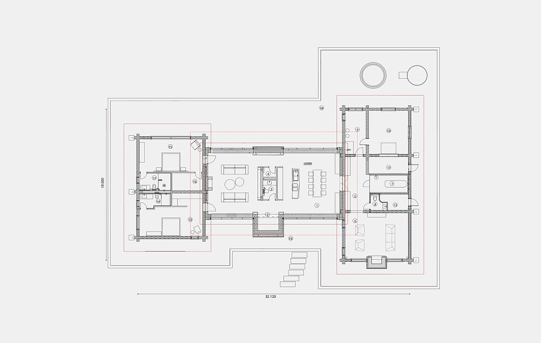
Планировка

Фото бани Соколово
/

Планировка

Планировочное решение выполняется в соответствии с заданием на проектирование, исходными данными и с учетом функционального зонирования помещений. Мы тщательно и серьезно относимся к этапу составления планировочного решения вплоть до расстановки мебели, так как от этого в будущем зависит Ваш комфорт и удобство проживания в бане.

Интерьер

Интерьер

Интерьер бани воплощает гармонию стиля и природы. Просторная зона отдыха выполнена из скандинавского черного дерева и серого гранита, дополнена аксессуарами, создающими уют. Панорамные окна наполняют пространство естественным светом, усиливая связь с природой. Вечером теплое локальное освещение органично распределено, создавая мягкую атмосферу для расслабления.
Фото бани Соколово
Фото бани Соколово
Фото бани Соколово
Фото бани Соколово
Фото бани Соколово
Фото бани Соколово
Фото бани Соколово
/