Двухэтажная баня из сухостойной полярной сосны Кело с открытой полукруглой террасой и отдельной спальней.
Баня выполнена по сказочным мотивам старого и нового. Примечательно, что заказчик обратился к нам с уже готовым макетом. Он изготовил его собственноручно, аккуратно вырезал и склеил все кусочки бумаги.
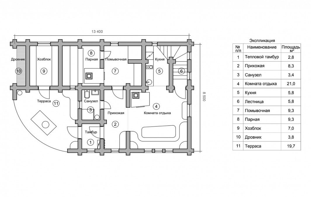
Прямоугольная в плане баня оснащена полукруглой открытой террасой с настилом из лиственницы и фальцевой кровлей из осиновой доски.
Планировочное решение на первом этаже включает в себя тамбур, прихожую, просторную комнату отдыха, кухню, помывочную, парную, хозблок, дровник и санузел. На втором же этаже расположена отдельная спальная комната.
Печку выбирал сам заказчик, потому что он хотел готовить традиционные русские блюда в традиционной русской печи. За ней открывается вид на вездесущую шведскую кухню. Ну и конечно, уже по классике, не обошлось без винтажной сантехники.
Стоимость стенового комплекта
Общая площадь
Площадь помещений
Планировочное решение выполняется в соответствии с заданием на проектирование, исходными данными и с учетом функционального зонирования помещений. Мы тщательно и серьезно относимся к этапу составления планировочного решения вплоть до расстановки мебели, так как от этого в будущем зависит Ваш комфорт и удобство проживания в бане.


