Встречайте весьма лаконичный проект бани с небольшой спальней с эркером на антресоли.
Как видите, хозяин бани любит красный цвет. На фоне серебристых стен диван и кресло стали стильными акцентами.
Кухня - IKEA. Хозяйке очень нравится кухня ещё и тем, что мы предусмотрели окошко перед раковиной. Мыть посуду теперь гораздо интереснее.
Лестница в стиле «леший». Не наша работа, хозяин рассказал, что сам подбирал ветки для ограждения в ближайшем сосновом бору.
Обратите внимание на затёски (метки, зарубки на деревьях). Редкий случай, когда заказчик сам взялся за монтаж окон по стандартной технологии с затёсками брёвен.
Стоимость стенового комплекта
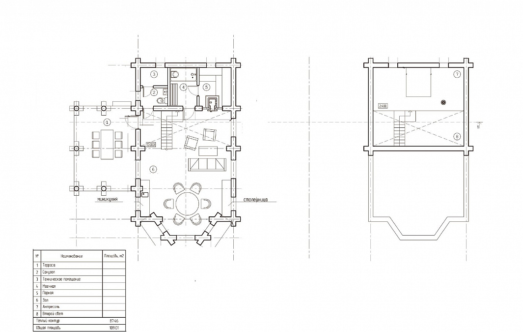
Общая площадь
Площадь помещений
Архитектурное решение образа представлено в формате 3D-модели. Фотореалистичная визуализация дает полное понимание, как будет выглядеть Ваша будущая баня.
Планировочное решение выполняется в соответствии с заданием на проектирование, исходными данными и с учетом функционального зонирования помещений. Мы тщательно и серьезно относимся к этапу составления планировочного решения вплоть до расстановки мебели, так как от этого в будущем зависит Ваш комфорт и удобство проживания в бане.







