Этот проект мы адаптировали специально для нашего заказчика на основе одного из самых популярных проектов. И получилась очень лаконичная баня.
Архитектурно-пространственная композиция бани представлена прямоугольной формой. Особенность бани – это двускатная кровля с покрытием из лиственничной дранки и 4 мансардными окнами.
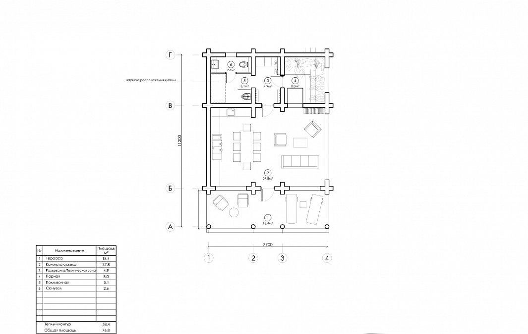
Терраса выполнена из лиственничной доски, общая площадь – 19 м2. Этого места хватит для организации летней кухней или зоны отдыха.
Планировочное решение бани состоит из комнаты отдыха, раздевалки, парной, помывочной и санузла.
Стоимость стенового комплекта
Общая площадь
Площадь помещений
Планировочное решение выполняется в соответствии с заданием на проектирование, исходными данными и с учетом функционального зонирования помещений. Мы тщательно и серьезно относимся к этапу составления планировочного решения вплоть до расстановки мебели, так как от этого в будущем зависит Ваш комфорт и удобство в бане.







