Баня — функциональное, технологичное, эстетичное и комфортное пространство для отдыха. Кровля придает ей конструктивистский вид, а двухъярусное остекление в гостиной открывает вид на лесной ручей. Площадь окон почти равна площади пола: 28 кв.м.
Терраса 62 кв.м. окружает баню со всех сторон. Ее открытая часть — идеальный спот для солнечных ванн, а крытая защищает от лишнего солнца, дождя и снега. Здесь же — горячая купель со столиком внутри. Лучшие места с видом на заводь!
В парной 12 кв.м. кедровые полки — широкие, будто двухместные, и словно парят в пространстве. Декор стен выполнен из колотых кедровых панелей. Потолок из алтайского кедра с извилистыми стыками украшает объемное панно из можжевеловых спилов. Еще одна особенность парной — потолочные скосы 45 градусов. Так проще забирать и разгонять самый горячий пар.
В моечной — двойной пол: под деревянным расположился теплый керамический, со сливными трапами. Вода из двух обливных ведер со статичным соплом утекает на глазах в зазоры со скоростью 50 литров в минуту.
Стоимость стенового комплекта
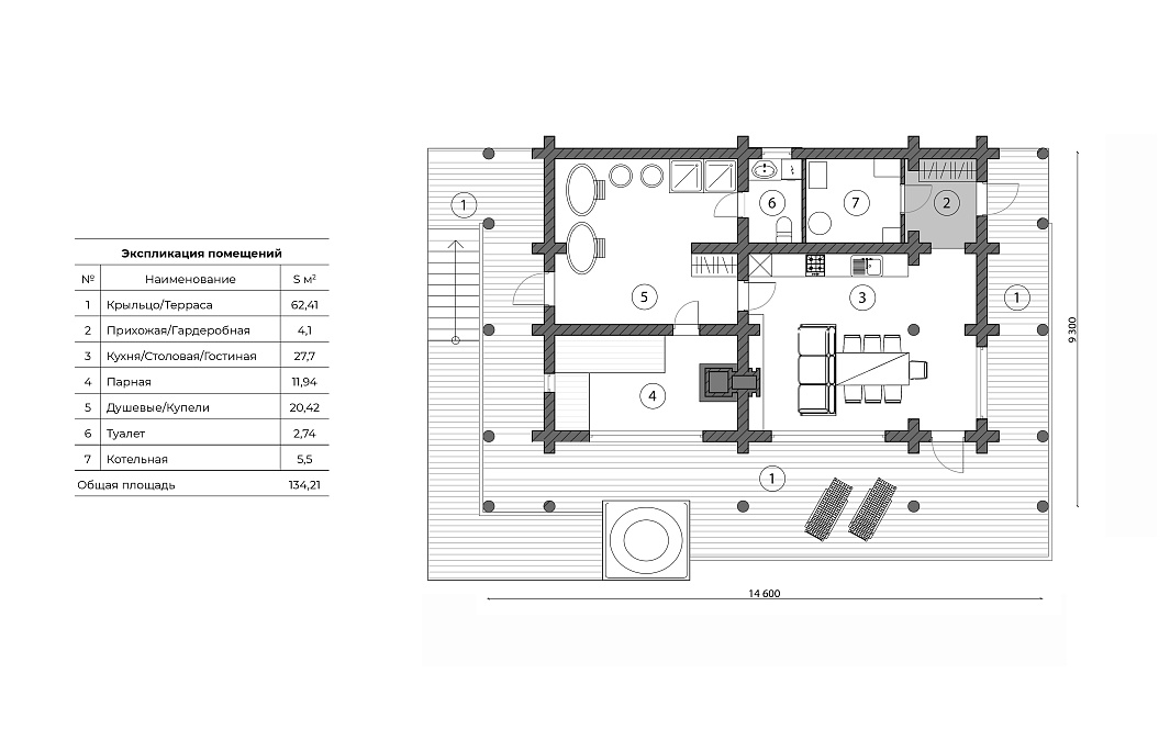
Общая площадь
Площадь помещений
Планировочное решение выполняется в соответствии с заданием на проектирование, исходными данными и с учетом функционального зонирования помещений. Мы тщательно и серьезно относимся к этапу составления планировочного решения вплоть до расстановки мебели, так как от этого в будущем зависит Ваш комфорт и удобство в бане.







