Баня с санузлом и зоной отдыха на небольшом участке в черте подмосковного города Чехов. Изюминкой проекта стала ромбовидная двухскатная крыша. Также мы использовали необычный приём — сочетание внутренних кирпичных перегородок со шлифованными бревенчатыми стенами.
Стоимость стенового комплекта
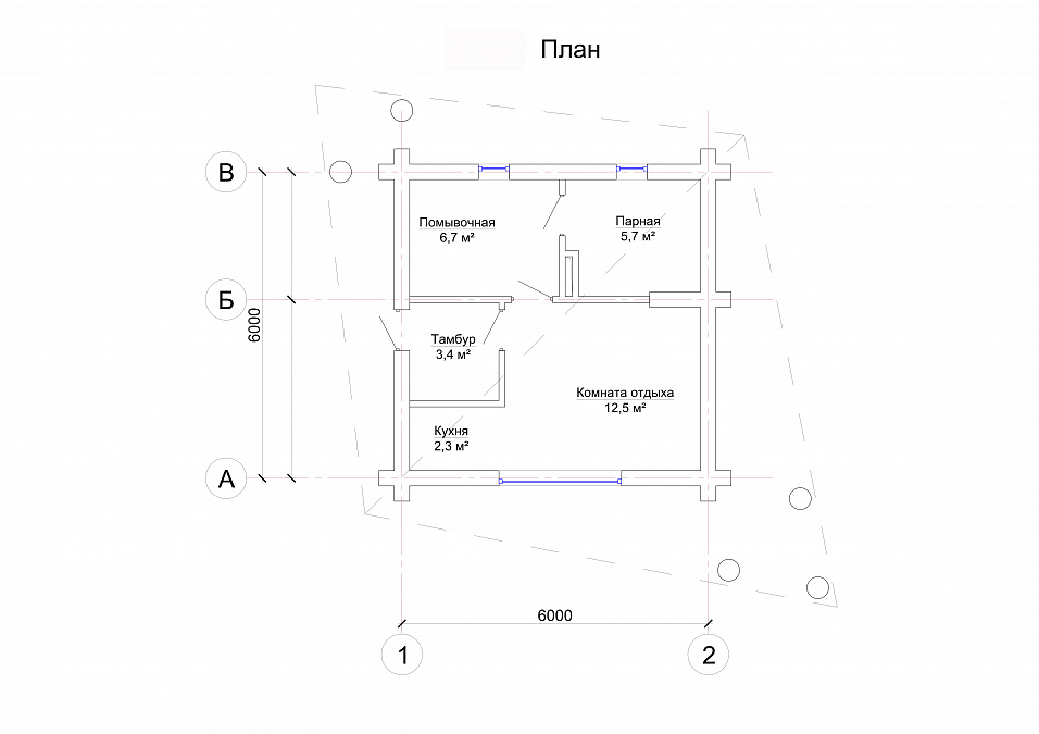
Общая площадь
Площадь помещений
Планировочное решение выполняется в соответствии с заданием на проектирование, исходными данными и с учетом функционального зонирования помещений. Мы тщательно и серьезно относимся к этапу составления планировочного решения вплоть до расстановки мебели, так как от этого в будущем зависит Ваш комфорт и удобство проживания в бане.





